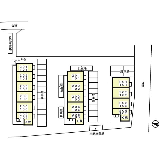
リビングタウン榎戸 C
|
|
| 所在地 | 愛知県常滑市港町6丁目 リビングタウン榎戸 C |
|---|---|
| 交通 | 名鉄常滑線 榎戸駅 徒歩320m 徒歩4分 名鉄常滑線 多屋駅 徒歩960m 徒歩12分 |
| 築年月 | 2004/06 | 新築/中古 | 中古 |
|---|---|---|---|
| 面積 | 33.62m² | 計測方式 | 壁芯 |
| バルコニー | 向き | 南 | |
| 建物階数 | 地上2階 | 部屋階数 | 1階 |
| 部屋/区画番号 | 101 | 総戸/区画数 | 8 |
| 建物構造 | 軽量鉄骨 | ||
| 管理形態 | 管理人非常駐 | ||
| 間取内容 |
LDK 10.0畳 洋室 3.0畳 |
||
| 駐車場 | 取引態様 | 一般 | |
| 引渡/入居時期 | 即時 | 現況 | 空家 |
| 周辺環境 |
【寿司】スシロー 常滑店まで1320m 【ファミリーレストラン】ココス 常滑店まで1156m 【ファーストフード】マクドナルド 155常滑店まで1339m 【スーパー】ベイシアフードセンター 常滑店まで826m 【コンビニエンスストア】ファミリーマート 常滑榎戸店まで479m 【郵便局】常滑多屋郵便局まで963m |
||
| 設備・条件 | ペット不可 角部屋 ガスコンロ システムキッチン カウンターキッチン 追い焚き バス専用 浴室乾燥機 トイレ専用 バス・トイレ別 温水洗浄便座 エアコン 床下収納 室内洗濯機置き場 CATV インターネット利用料無料 オートロック TVドアホン プロパンガス 公営水道 排水浄化槽 駐輪場 バルコニー フローリング | ||
| 物件番号 | 685756 | 掲載期限日 | 2025/12/01 |
| 自社物 | 状態 | 空有 | |
| 特記事項 | ルームクリーニング料金:49500円(初期) |
||
Loading...
※物件掲載内容と現況に相違がある場合は現況を優先と致します。

Re:)Room~知多半島エリアのお部屋さがし専門店リルーム
宅地建物取引業:兵庫県知事(1)第401659号
〒477-0031 愛知県東海市大田町下浜田1016番地
ユウナル東海1F
Tel/0562-36-0039 Fax/0562-36-0040
E-mail/reroom@riverway.jp






















